Get to know us
YFA Engineers is a Structural Engineering company in Renton, Washington, providing Structural Engineering, Construction Support, and Drafting services. Founded and led by Yousif Almaaroof, a Professional Engineer with over eight years of experience in construction and structural engineering, the company collaborates with skilled structural and construction engineers to meet clients' needs and project deadlines efficiently.
Our mission
Our Mission is to realize our vision by proactively accommodating the needs of all parties involved in project delivery through clear, responsive communication.
To support Owners during the review process, we provide clear, well-organized calculations and plans that are easy to follow, streamlining permit issuance.
To meet Clients’ scheduling needs, we prioritize producing review-ready documents that facilitate timely approvals by cities and counties. We remain responsive and flexible to ensure our work aligns with client timelines.
To support Contractors, we emphasize constructability, practical means and methods, and material availability during design. Our plans are clear and actionable, and we remain available throughout construction to address questions and ensure smooth execution.
Our vision
Our Vision is a world where all parties involved in project delivery operate as a unified team, communicating effectively and working toward shared success. Key stakeholders—including Owners, Designers, Contractors, Inspectors, Testing Facilities, and Suppliers—understand their roles, the value they bring, and what others need to perform successfully.
Each party not only executes their responsibilities but also appreciates the broader context of project delivery: engineering principles, construction means and methods, and the limitations inherent to each approach. We envision a system that equips all participants with this foundational knowledge.
When teams communicate openly and understand both their own roles and those of others, the likelihood of successful project outcomes increases significantly. This alignment helps prevent costly errors, reduces conflict, and fosters a collaborative environment throughout the project lifecycle.


Yousif Almaaroof
I am a structural and construction engineer specializing in bridge construction and structural engineering. I have a Master's in Structural Engineering and Bachelor's in Civil Engineering from the University of Washington (UW) - Seattle. I enjoy biking, hiking, and playing soccer.
I have contributed to significant projects, including the $140-million SR520 West Approach Bridge South (WABS) in Seattle, Washington, and the $100-million White River Bridge in Arkansas. As a Field Engineer, I was responsible for drafting and designing plans, as well as overseeing the construction of various components such as piles, trestles, bearings, expansion joints, precast caps, columns, diaphragms, formwork, falsework, and erection plans.
Additionally, I served as a Construction Support Engineer with the Washington Department of Transportation, where I reviewed and approved over 500 submittals related to formwork, falsework, girder erection, load ratings, drilled shaft installations, buried structures, and retaining walls.
I have also undertaken a variety of ad-hoc engineering tasks, utilizing lumber, concrete, and steel for diverse structures. Currently, I work as a Structural Engineer with the Washington Department of Transportation, specializing in the design of steel and prestressed concrete girder bridges.
Yousif Almaaroof, PE
Founder / STRUCTURAL ENGINEER


SR520 West Approach Bridge North (WABS)
White River Bridge
Construction Support


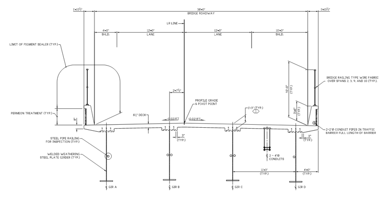
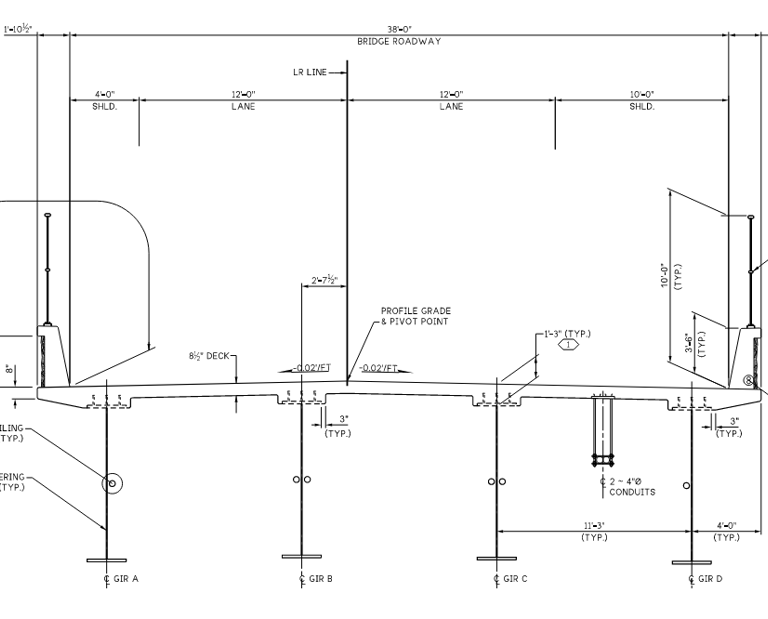
Bridge Design


